В Уфе на улице Софьи Перовской построят высотки и девятиэтажный паркинг
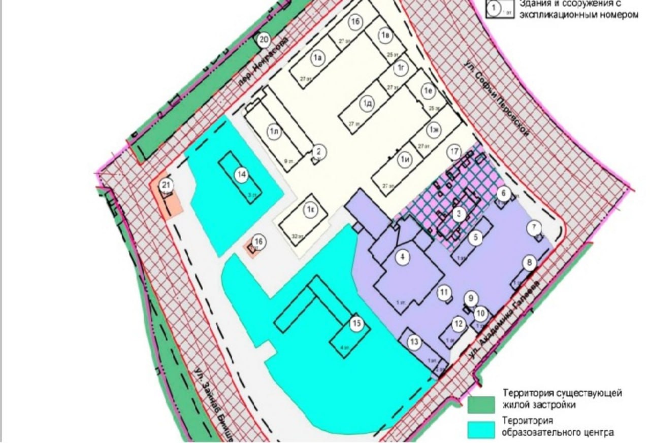
Под застройку отдали квартал, ограниченный улицами Софьи Перовской, Академика Галеева, Зайнаб Биишевой и переулком Некрасова.
Площадь территории составляет 11 гектаров. Сейчас здесь находятся частные дома, которые, за исключением нескольких, будут снесены.
Уже построены три многоэтажные жилые секции высотой 25 и 27 этажей, строятся еще шесть таких секций.
Кроме того, здесь появится 9-этажный паркинг на 734 машино-места.
На территории также построят школу на 198 мест и детский сад на 200 мест.































































